Казань, ул. Тукая 77
Пн-пт с 08:00 до 21:00

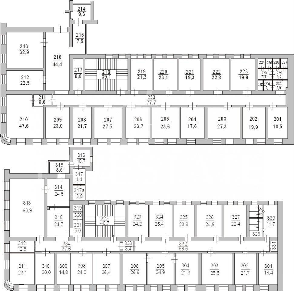
Здание под гостиницу или офисный центр 1372 кв.м. ID: J8182

Казань, Вахитовский, улица Баумана, д.42
Площадь 1372 м²
Этаж 2 из 3
Материал Административное здание
2 058 000 / месяц
1 500 /м²
Мирослав Федотов Мирослав Федотов
Специалист по коммерческой недвижимости
Показать телефон miroslav@tat-estate.ru
QR
Ссылка на объект

Описание

Предложение от собственника!

Сдаются помещения на 2 и 3 этаже дохoдного дoма Жapoва - постpoйка ХIХ века (1836г.).

- доступ 24/7, отдeльный вхoд с первой линии улицы Бaуманa!
- высокий туристический трафик;
- предчистовая отделка;
- отопление центральное, канализация и водоснабжение городские;
- высокие потолки.

Сдается с НДС, (в цене).

Характеристики

  • Тип недвижимости Коммерческая
  • Населенный пункт Казань
  • Район Вахитовский
  • Адрес улица Баумана, д.42
  • Стоимость заМесяц
  • Вид объекта Офисное помещение
  • Обязательно для заполнения: доп. 2 категории Офис, Свободного назначения, Гостиница
  • Тип аренды (прямая/субаренда) Прямая
  • Общая площадь 1372 м²
  • Этаж 2
  • Этажность дома 3
  • Лифт нет
  • Вход С улицы
  • Планировка Кабинетная
  • Отделка Чистовая
  • Тип здания Административное здание
  • Тип парковки На улице
  • Право собственности Собственник
  • Высота потолка в метрах 4
Задать вопрос


Вас также может заинтересовать:
9
Склад ответственного хранения, низкотемпературный
Казань, Зеленодольский район, Зеленодольск, территория Технополис Новая Тура, 3

2 000 000 / месяц
  • Вид объекта:Складское помещение
  • Тип аренды (прямая/субаренда):Прямая
  • Общая площадь:2000 м²
  • Этаж:1
19
Общепит-кафе
24/7 доступ
Помещение свободного назначения 909 м²
Казань, улица Нариманова, д.70/1
Вахитовский
1 818 000 / месяц
  • Вид объекта:Помещение свободного назначения
  • Тип аренды (прямая/субаренда):Прямая
  • Общая площадь:909 м²
  • Этаж:1
16
Много кВт-производство
Общепит-кафе
Общепит, ресторан, кафе в топ локации 466 кв.м.
Казань, улица Баумана, д.27
Вахитовский
1 631 000 / сутки
  • Вид объекта:Помещение свободного назначения
  • Общая площадь:466 м²
  • Этаж:1
  • Этажность дома:5

Мы используем файлы cookie, чтобы обеспечить вам наилучший доступ к нашему веб-сайту

Скопировано