Казань, ул. Тукая 77
Пн-пт с 08:00 до 21:00

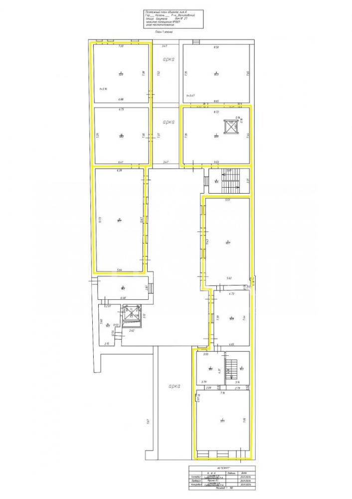
Общепит, ресторан, кафе в топ локации 466 кв.м. ID: J8234

Казань, Вахитовский, улица Баумана, д.27
Площадь 466 м²
Этаж 1 из 5
Материал Административное здание
1 631 000 / сутки
3 500 /м²
QR
Ссылка на объект

Описание

Ищем топового арендатора, для первого этажа в здании апарт отеля, ждем общепит, в идеале если вы заберёте всю площадь - площадь всего первого этажа 466,4 кв.м. , помимо этого есть вариант деления.

Помимо самого помещения есть внутренний дворик для уличной террасы, который при этом является общей зоной для прохода к зоне ресепшн в апарт отеле (ожидаемый трафик от пользователей 92 апартаментов).
Высота потолков 4 метра, есть также цокольно помещения с переменной высотой потолков, где можно организовать дополнительную зону приготовления, заготовочный цех.
Все коммуникации в помещении рассчитаны под общепит: вытяжка проведена, мощность электроэнергии 500 кВт, вода городская, канализация городская, проходимость туристического потока и жителей города огромная.
Несколько входных групп.
Помещение расположено поблизости от остановок
пассажирского транспорта (метро, троллейбусы, автобусы) в зоне
высокого туристического пешеходного трафика, более 4500 чел в час.

Здание после капитальной реконструкции, являет собой гармоничное соединение
прошлого и настоящего в одном архитектурном объекте. В здании сохранен
внешний фасад, внутренняя часть полностью перестроена с применением
современных технологий и материалов. Состояние - под чистовую отделку, с
точкой подключения к санузлам, горячему и холодному водоснабжению. Газовая
система отопления (собственная котельная) магистральная система
кондиционирования, система вентиляции водоснабжение, интернет.

Коммунальные платежи оплачивает арендатор по факту потребления;

Здание объект культурного наследия г. Казань с богатой историей - Дом Маркова
А.Т., 1853г, 1915г., архитекторы П. Чернецкий, Ф.Р. Амлонг». Сейчас
заканчивается капитальный ремонт и историческая его реконструкция (воссоздан
по чертежам фасад и лепнина, с кованными решетками).
Подробнее

Характеристики

  • Тип недвижимости Коммерческая
  • Населенный пункт Казань
  • Район Вахитовский
  • Адрес улица Баумана, д.27
  • Стоимость заСутки
  • Вид объекта Помещение свободного назначения
  • Обязательно для заполнения: доп. 2 категории Свободного назначения, Торговое помещение, Общепит
  • Общая площадь 466 м²
  • Этаж 1
  • Этажность дома 5
  • Лифт да
  • Вход С улицы
  • Отделка Чистовая
  • Тип здания Административное здание
  • Тип парковки Нет
  • Право собственности Посредник
Задать вопрос


Вас также может заинтересовать:
11
Здание 1200кв.м
Казань, улица Широкая, д.7
Кировский
1 440 000 / месяц
  • Вид объекта:Здание
  • Тип аренды (прямая/субаренда):Прямая
  • Общая площадь:1200 м²
  • Этаж:1
9
Склад ответственного хранения, низкотемпературный
Казань, Зеленодольский район, Зеленодольск, территория Технополис Новая Тура, 3

2 000 000 / месяц
  • Вид объекта:Складское помещение
  • Тип аренды (прямая/субаренда):Прямая
  • Общая площадь:2000 м²
  • Этаж:1
19
Общепит-кафе
24/7 доступ
Помещение свободного назначения 909 м²
Казань, улица Нариманова, д.70/1
Вахитовский
1 818 000 / месяц
  • Вид объекта:Помещение свободного назначения
  • Тип аренды (прямая/субаренда):Прямая
  • Общая площадь:909 м²
  • Этаж:1

Мы используем файлы cookie, чтобы обеспечить вам наилучший доступ к нашему веб-сайту

Скопировано