Казань, ул. Тукая 77
Пн-пт с 08:00 до 21:00

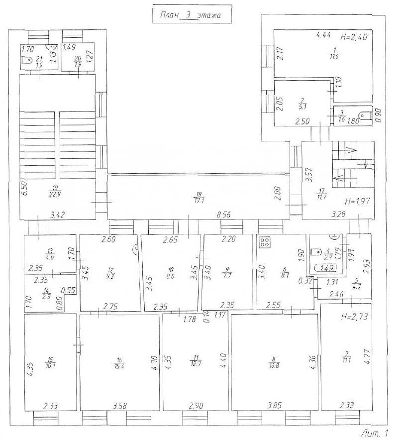
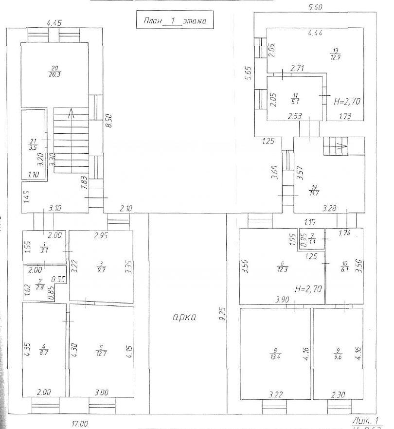
Трехэтажный особняк ХIX века - «Дом В. Ф. Сабитовой» 509 кв.м. ID: J9666

Казань, Вахитовский, улица Габдуллы Тукая, д.86
Площадь 509 м²
Этаж 1 из 3
Материал Другой
170 000 000
333 988 /м²
Мирослав Федотов Мирослав Федотов
Специалист по коммерческой недвижимости
Показать телефон miroslav@tat-estate.ru
QR
Ссылка на объект

Описание

Трехэтажный особняк ХIX века "Дом В.Ф. Сабитовой".

В здании выполнен полный ремонт, заполнен полностью арендаторами, АП 320 400 руб.

Локация и транспортная доступность: здание расположено на первой линии улицы Габдуллы Тукая. Удобные подъездные пути из любой части города, в том числе со стороны аэропорта и ж/д вокзала. Рядом расположены остановки общественного транспорта, в шаговой доступности станция метро «Площадь Тукая».

Окружение: район насыщен историческими и культурными объектами, привлекает малоэтажной застройкой, как сохранившейся c XIX века, так и современной. Находится в зоне пешей доступности от основных культурно-исторических объектов города, Казанского Кремля, расположено на пересечении многих туристических маршрутов по соседству с крупными торговыми объектами. В пешей доступности озеро Кабан, театры и концертные залы.

Трафик: умеренный автомобильный и пешеходный трафик.

Возможные варианты использования: Здание имеет 3 полноценных этажа. Планировка удобна для размещения офиса, магазина, ресторана, гостиницы.

Коммуникации: Отопление-центральное, водоснабжение и канализация- городские.

Отделка помещений: предчистовая. Фасад полностью восстановлен в соответствии с требованиями минкульта.

Площадь 1 этажа 95 кв.м. 2 и 3 этажи по 156 кв.м.

Все работы по восстановлению объекта, требующие согласования, завершены. Здание подготовлено к финишной внутренней отделке и дальнейшей эксплуатации.

Здание введено в эксплуатацию, возможно участие будущего арендатора в ходе проведения внутренних отделочных работ.

2 парковочных места внутри двора.

Цена с НДС.
Подробнее

Характеристики

  • Тип недвижимости Коммерческая
  • Населенный пункт Казань
  • Район Вахитовский
  • Адрес улица Габдуллы Тукая, д.86
  • Вид объекта Помещение свободного назначения
  • Тип сделки Продажа
  • Общая площадь 509 м²
  • Этаж 1
  • Этажность дома 3
  • Отопление Центральное
  • Лифт нет
  • Вход С улицы
  • Планировка Кабинетная, Открытая
  • Отделка Чистовая
  • Тип здания Другой
  • Тип парковки На улице
  • Право собственности Собственник
  • Удаленность от дороги Первая линия
  • Высота потолка в метрах 3
Задать вопрос


Вас также может заинтересовать:
4
НДС
Продается нежилое помещение на 1 этаже в ЖК «Авалон сити», 561 кв.м.
Казань, улица Карбышева, д.12а
Приволжский
168 584 609
  • Вид объекта:Помещение свободного назначения
  • Общая площадь:561.9 м²
  • Этаж:1
  • Этажность дома:24
2
Бесплатная парковка
Мокрая точка
Здание 756 м²
Казань, улица Чистопольская, д.9б
Ново-Савиновский
180 000 000
  • Вид объекта:Здание
  • Общая площадь:756 м²
  • Этаж:4
  • Этажность дома:4
21
Земля-полуостров на берегу Волги 3,3Га
Казань, Казань, полуостров близ поселка Старое Победилово
Приволжский
150 000 000
  • Вид объекта:Земля пром. назначение
  • Общая площадь:33000 м²
  • Этаж:1

Мы используем файлы cookie, чтобы обеспечить вам наилучший доступ к нашему веб-сайту

Скопировано