Казань, ул. Тукая 77
Пн-пт с 08:00 до 21:00

Продам 1/2 долю в ГАБ (доходность 50 к) ID: J9435

Казань, улица Сафиуллина, д.26А
Площадь 93 м²
Этаж 1 из 10
Материал Жилой дом
QR
Ссылка на объект

Описание

Продам 1/2 долю владения помещением, сдано в долгосрочную аренду, доходность 100000 в месяц на двоих ( индексация летом). Владею помещением я и мой партнер, продаю долю партнера, арендаторов заселяла сама, тщательно выбирала с кем работать, заниматься управлением буду сама (все орг вопросы на мне), договора у арендаторов заключены прямы с ресурсоснабжающими организациями!
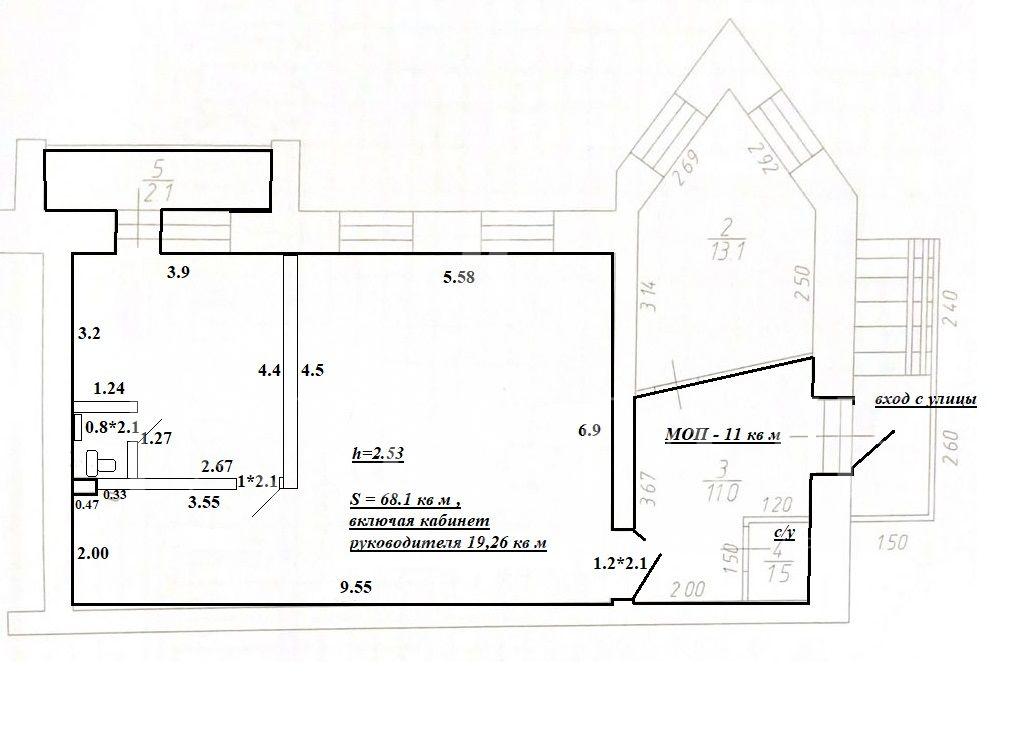
помещение свободного назначения под офис, отдел продаж, имеется кабинет руководителя со своим сан узлом, зона под кухню с мокрой точкой, кондиционер, зона для сотрудников на 8-10 рабочих мест!
Площадь офиса 93.7 кв.м.
Один кабинет сдан под парикмахерскую, доступ 24/7, есть место под вывеску, отдельный вход, первый этаж,
потолки 3 метра, парковка перед домом.
Коммунальные платежи оплачиваются отдельно по счётчикам: зима 7000 руб, лето 4500 руб.
доходность по запросу !


Звоните, все расскажу, покажу, отвечу на все интересующие вопросы!

Характеристики

  • Тип недвижимости Коммерческая
  • Населенный пункт Казань
  • Адрес улица Сафиуллина, д.26А
  • Вид объекта Офисное помещение
  • Обязательно для заполнения: доп. 2 категории Свободного назначения, Торговое помещение
  • Тип сделки Продажа
  • Общая площадь 93 м²
  • Этаж 1
  • Этажность дома 10
  • Лифт нет
  • Вход Со двора
  • Планировка Кабинетная
  • Отделка Чистовая
  • Тип здания Жилой дом
  • Тип парковки На улице
  • Право собственности Посредник
  • Высота потолка в метрах 3
Задать вопрос


Вас также может заинтересовать:
8
Гостиница 18.89 м²
Казань, улица Татарстан, д.14/59
Вахитовский
9 633 900
  • Вид объекта:Гостиница
  • Общая площадь:18.89 м²
  • Этаж:3
  • Этажность дома:3
14
24/7 доступ
Мокрая точка
Помещение свободного назначения 42 м²
Казань, проспект Ямашева, д.63Б
Ново-Савиновский
6 999 972
  • Вид объекта:Помещение свободного назначения
  • Общая площадь:42 м²
  • Этаж:1
  • Этажность дома:2
13
Гостиница 21.3 м²
Казань, улица Татарстан, д.14/59
Вахитовский
10 863 000
  • Вид объекта:Гостиница
  • Общая площадь:21.3 м²
  • Этаж:3
  • Этажность дома:3

Мы используем файлы cookie, чтобы обеспечить вам наилучший доступ к нашему веб-сайту

Скопировано