Казань, ул. Тукая 77
Пн-пт с 08:00 до 21:00

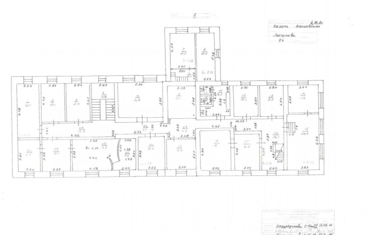
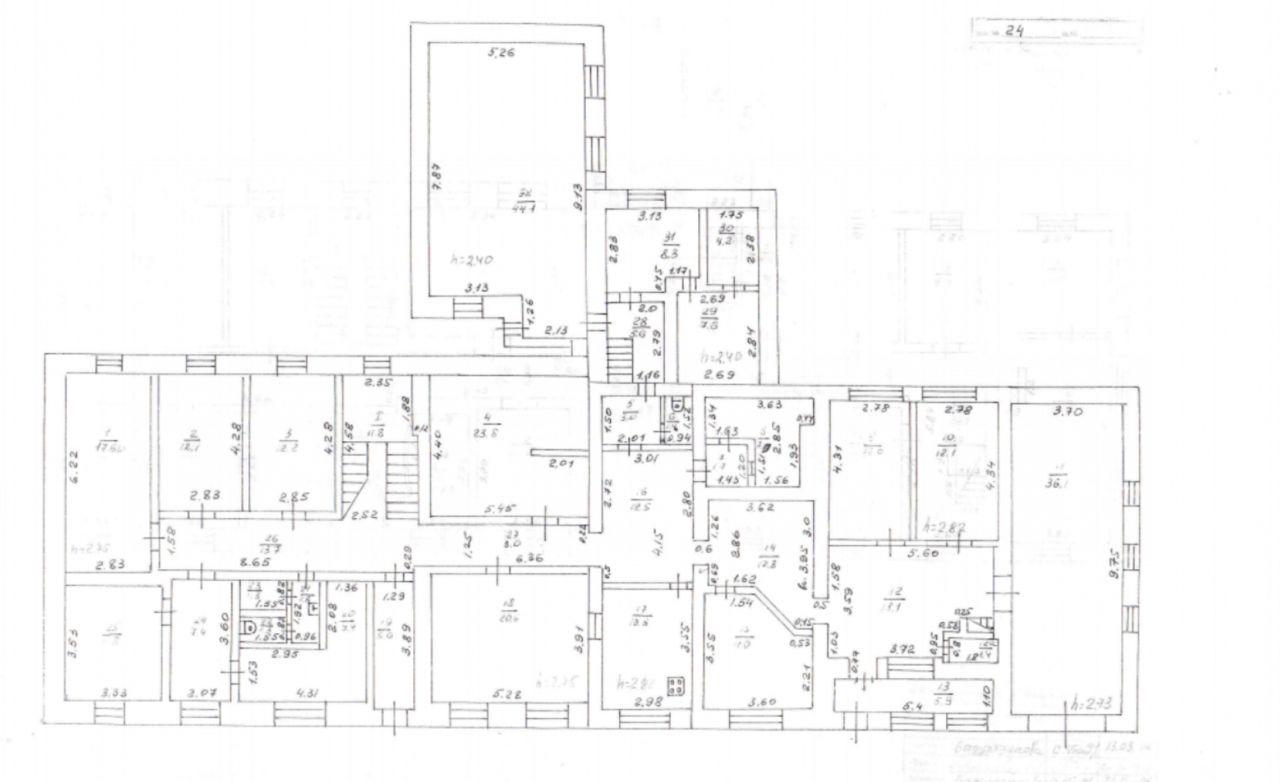
Продам офисный центр 1032 кв.м. с мансардой земля 14 соток ID: J4159

Казань, Вахитовский, Калуга, улица Масгута Латыпова, д.24
Площадь 1032 м²
Этаж 1 из 3
Материал Административное здание
QR
Ссылка на объект

Описание

Продаем уютный офисный центр с удобным расположением!
Помещение состоит из двух этажей, третий мансардный.
Хорошее соседство, тихий центр, 7 мин до метро Суконная слобода, готовое помещение без вложений!
- Ремонт
- здание класса В+
- 5 отдельных входов
- ухоженный двор с декоративными насаждениями и места для барбекю
- небольшой бассейн, сауна
- с/у на каждом этаже в кафеле, несколько душевых кабин
- все коммуникации - автономное отопление - своя курилка
- частичная мебель.
Прилегающая территория плюс земля под зданием площадью 993 кв. м., также в стоимость входит участок 5 соток ИЖС
- Тихое/уединённое место в центре города, отдельно стоящее здание.
Рядом: Жилые дома (от маленьких старых домов до высоких новостроек), отдел полиции №2, продуктовые магазины, кафе, хлебозавод, школа №98, рестораны.

Характеристики

  • Тип недвижимости Коммерческая
  • Населенный пункт Казань
  • Район Вахитовский
  • Микрорайон Калуга
  • Адрес улица Масгута Латыпова, д.24
  • Вид объекта Офисное помещение
  • Обязательно для заполнения: доп. 2 категории Свободного назначения, Гостиница
  • Тип сделки Продажа
  • Общая площадь 1032 м²
  • Этаж 1
  • Этажность дома 3
  • Водоснабжение да
  • Лифт нет
  • Вход С улицы
  • Планировка Кабинетная
  • Отделка Чистовая
  • Тип здания Административное здание
  • Тип парковки На улице
  • Право собственности Посредник
  • Статус земли Поселений
  • Высота потолка в метрах 2.8
Задать вопрос


Вас также может заинтересовать:
29
Помещения от 437,1 кв.м. вблизи метро на ул. Волгоградская
Казань, улица Волгоградская, д.7/1
Московский
85 000 000
  • Вид объекта:Помещение свободного назначения
  • Общая площадь:437 м²
  • Этаж:4
  • Этажность дома:9
23
Первая линия
Отдельный вход
Помещение свободного назначения 300 кв.м.
Казань, проспект Победы, д.39
Приволжский
79 000 000
  • Вид объекта:Помещение свободного назначения
  • Общая площадь:300 м²
  • Этаж:1
  • Этажность дома:9
20
Торговое помещение на 1 линии выход из метро Суконная слобода ТОП локация
Казань, улица Нурсултана Назарбаева, д.10
Вахитовский
75 500 000
  • Вид объекта:Помещение свободного назначения
  • Общая площадь:215 м²
  • Этаж:1
  • Этажность дома:6

Мы используем файлы cookie, чтобы обеспечить вам наилучший доступ к нашему веб-сайту

Скопировано