Казань, ул. Тукая 77
Пн-пт с 08:00 до 21:00

Продам здание под мед клинику 300 кв.м. ID: J10622

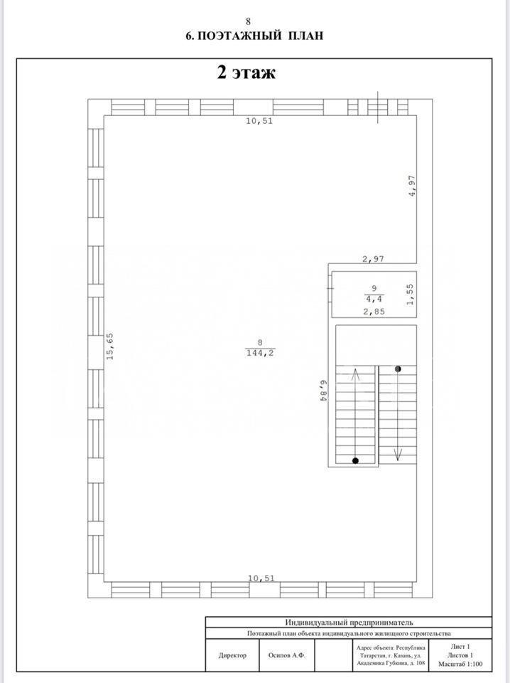
Казань, Вахитовский, улица Академика Губкина, д.108
Площадь 329 м²
Этаж 1 из 2
Материал Административное здание
QR
Ссылка на объект

Описание

Отдельно стоящее помещение, уникальное для своей локации, отлично просматривается с Проспекта Победы, состоит из двух этажей, первый этаж торговый зал 150 кв.м., много окон, светлое.
Здание нежилое подходит для медицинского центра, стоматологии и прочего связанного с медициной.
ВРИ Земли 3.4.1 Амбулаторно-поликлиническое обслуживание
Электричество подведено 150 кВт, Вода, газ, канализация все есть.
Объект с ремонтом: площадка асфальтированная перед зданием , на полу керамогранит Estima , кондиционирование, двери установлены новые, стены окрашены.
Площадь всего помещения 305 кв.м.
Имеется земельный участок под 5 парковочных мест. Рядом остановка общественного транспорта (5 минут).

Характеристики

  • Тип недвижимости Коммерческая
  • Населенный пункт Казань
  • Район Вахитовский
  • Адрес улица Академика Губкина, д.108
  • Вид объекта Помещение свободного назначения
  • Тип сделки Продажа
  • Общая площадь 329 м²
  • Этаж 1
  • Этажность дома 2
  • Отопление Автономное
  • Лифт нет
  • Вход С улицы
  • Планировка Открытая
  • Отделка Чистовая
  • Тип здания Административное здание
  • Тип парковки На улице
  • Право собственности Посредник
  • Удаленность от дороги Первая линия
  • Статус земли Поселений
  • Высота потолка в метрах 3.5
Задать вопрос


Вас также может заинтересовать:
Помещение свободного назначения
Казань, улица Овражная, д.52
Вахитовский
65 790 000
  • Вид объекта:Помещение свободного назначения
  • Общая площадь:387 м²
  • Этаж:1
  • Этажность дома:4
19
Продажа помещения в сердце Казани
Казань, улица Баумана, д.42
Вахитовский
45 000 000
  • Вид объекта:Помещение свободного назначения
  • Общая площадь:183 м²
  • Этаж:2
  • Этажность дома:3
11
Общепит-кафе
Отдельный вход
Площадь свободного назначения (ПСН) 555,9 кв.м.
Казань, улица Пушкина, д.18
Вахитовский
67 000 000
  • Вид объекта:Помещение свободного назначения
  • Общая площадь:555.9 м²
  • Этаж:-1
  • Этажность дома:4

Мы используем файлы cookie, чтобы обеспечить вам наилучший доступ к нашему веб-сайту

Скопировано