Казань, ул. Тукая 77
Пн-пт с 08:00 до 21:00

Здание в центре города с парковкой ID: J10454

Казань, Вахитовский, улица Островского, д.104
Площадь 1069 м²
Этаж 1 из 3
Материал Административное здание
150 000 000
140 318 /м²
QR
Ссылка на объект

Описание

Продается отдельно стоящее 3-х этажное торгово-офисное здание в центре грода Казань в Вахитовском районе по ул. Островского, д. 104.

3 этажа суммарной площадью 844 кв.м. и подвал плошадью подвал 225 кв.м. нa coбcтвеннoм земельнoм учacтке 768 кв.м.
Своя парковка на 8 машино-мест, въезд через шлагбаум, территория выложена брусчаткой и огорожена забором.

Все этажи в косметическом ремонте, подвал в черновом виде, частично засыпан прежним собственником.
Третий этаж, фасад и дополнительная лестница подлежат реконструкции.

Индивидуальный газовый котел расположен в пристрое к зданию, три новых контура отопления, свой на каждый этаж.
Отопление в -30 градусов обходиться максимум 35-40 т.р. в месяц за все здание.
Коммунальные услуги (газ, электричество, ХВС и водоотведение) оплачиваются отдельно
Электричества с возможностью увеличения, ТП находится рядом.

На данный момент здание занимают арендаторы, с краткосрочными договорами аренды.
На первом этаже расположен "Самокат"
На втором частная детская поликлиника "Разумнейро".
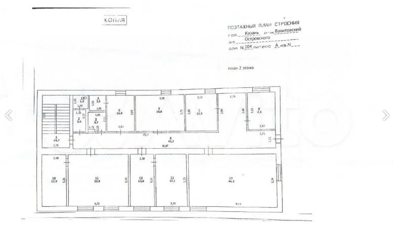
На третьем этаже расположены различные офисы.

Здание в Советский период построено как 2 этажное под типографию.
Подвал и 1 этаж свободного назначения, 2 и 3 этажи кабинетной планировки.
После реконструкции общая площадь составит 1228,94 кв.м (архитектурный градостроительный облик здания по запросу).
Проект реконструкции согласован ИКМО г. Казани.
Рабочий проект в процессе.
По документам: два собственника, юридическое лицо и физическое. Обременений нет.

Если у вас есть варианты для инвестиций в реконструкцию объекта, пишите, все обсуждаемо.
Звоните, готова организовать показ в удобное для Вас время.
С уважением, Дина Загреева.
Подробнее

Характеристики

  • Тип недвижимости Коммерческая
  • Населенный пункт Казань
  • Район Вахитовский
  • Адрес улица Островского, д.104
  • Вид объекта Здание
  • Обязательно для заполнения: доп. 2 категории Офис, Торговое помещение
  • Тип сделки Продажа
  • Общая площадь 1069 м²
  • Этаж 1
  • Этажность дома 3
  • Водоснабжение да
  • Лифт нет
  • Вход С улицы
  • Планировка Кабинетная
  • Отделка Офисная
  • Тип здания Административное здание
  • Тип парковки На улице
  • Право собственности Собственник
  • Статус земли Участок промышленности, транспорта, связи и иного не сельхоз. назначения
  • Высота потолка в метрах 3
Задать вопрос


Вас также может заинтересовать:
6
Здание с землей, площадь 1000 кв.м. ГАБ
Казань, улица Восстания, д.102

119 000 000
  • Вид объекта:Помещение свободного назначения
  • Общая площадь:1000 м²
  • Этаж:1
  • Этажность дома:3
2
Продается офисное здание с арендаторами
Казань, улица Чистопольская, д.9б
Ново-Савиновский
179 172 000
  • Вид объекта:Офисное помещение
  • Тип аренды (прямая/субаренда):Прямая
  • Общая площадь:756 м²
  • Этаж:1
4
НДС
Продается нежилое помещение на 1 этаже в ЖК «Авалон сити», 561 кв.м.
Казань, улица Карбышева, д.12а
Приволжский
168 584 609
  • Вид объекта:Помещение свободного назначения
  • Общая площадь:561.9 м²
  • Этаж:1
  • Этажность дома:24

Мы используем файлы cookie, чтобы обеспечить вам наилучший доступ к нашему веб-сайту

Скопировано