Казань, ул. Тукая 77
Пн-пт с 08:00 до 21:00

Готовый склад\произв. в Новониколаевке 1620 кв.м ID: J10275

Осиново, Республика Татарстан (Татарстан), Зеленодольский район, Осиновское сельское поселение, территория Промышленная Площадка Индустриальный Парк М7, 17
Площадь 1620 м²
Этаж 1 из 2
Материал Другой

Описание

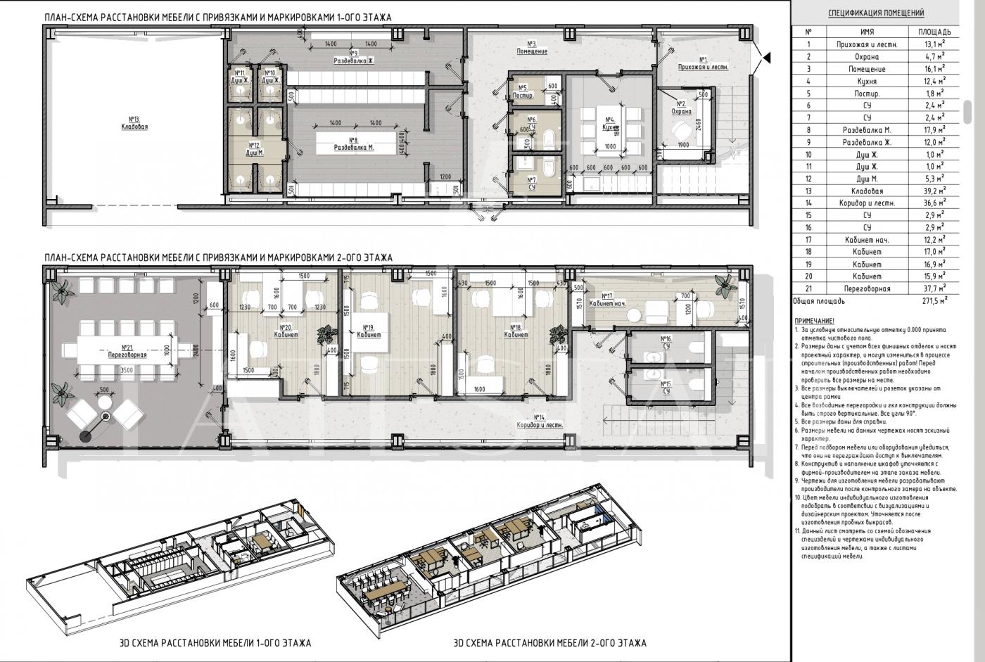
Продажа производственно-складского здания 1320 с АБК 271 кв.м на участке 26.52соток


По АБК:

271 кв.м.
Район Осиново.

  • Расположен поровну на двух этажах( офисы, душевые, переговорка, туалет), включающий в себя все необходимые для бизнес процесса помещения.

  • Проведен скоростной интернет, есть серверная туалеты, душ и раздевалка. Система контроля доступа и пожарная сигнализация.

  • Центральная вентиляция в офисах. Панорамный вид на цех.


Основная площадь:

1320 кв.м.

  • Ворота центральные высотой 4.5 метра шириной 4 метра Все ворота оснащены электрическим сервоприводом.

  • ворота с торца 2 шт 4.5 метра шириной 4 метра Все ворота оснащены электрическим сервоприводом.

  • Высота до фермы 8 метров

  • Полы на отметке 0 без пандус. С антипылевым покрытием и нагрузкой до 5т/кв.м

  • 6 метров шаг колонн

  • габариты: 60Х24 метра

  • Возможно движение фуры вокруг склада.

  • Электричество базовое 50 кВт возможно увеличение до 1 мВт (обсуждается отдельно)

  • Естественный свет (много окон)

  • Вода центральная канализация септик


Ценообразование: 95000 р. за кв.м. без НДС

Подробнее

Характеристики

  • Тип недвижимости Коммерческая
  • Населенный пункт Осиново
  • Адрес Республика Татарстан (Татарстан), Зеленодольский район, Осиновское сельское поселение, территория Промышленная Площадка Индустриальный Парк М7, 17
  • Вид объекта Складское помещение
  • Обязательно для заполнения: доп. 2 категории Свободного назначения, Производство
  • Тип сделки Продажа
  • Общая площадь 1620 м²
  • Этаж 1
  • Этажность дома 2
  • Отопление Автономное
  • Водоснабжение да
  • Лифт нет
  • Вход С улицы
  • Планировка Открытая
  • Отделка Чистовая
  • Тип здания Другой
  • Тип парковки На улице
  • Право собственности Собственник
  • Статус земли Участок промышленности, транспорта, связи и иного не сельхоз. назначения
  • Высота потолка в метрах 8
Задать вопрос

Мы используем файлы cookie, чтобы обеспечить вам наилучший доступ к нашему веб-сайту

Скопировано