Казань, ул. Тукая 77
Пн-пт с 08:00 до 21:00

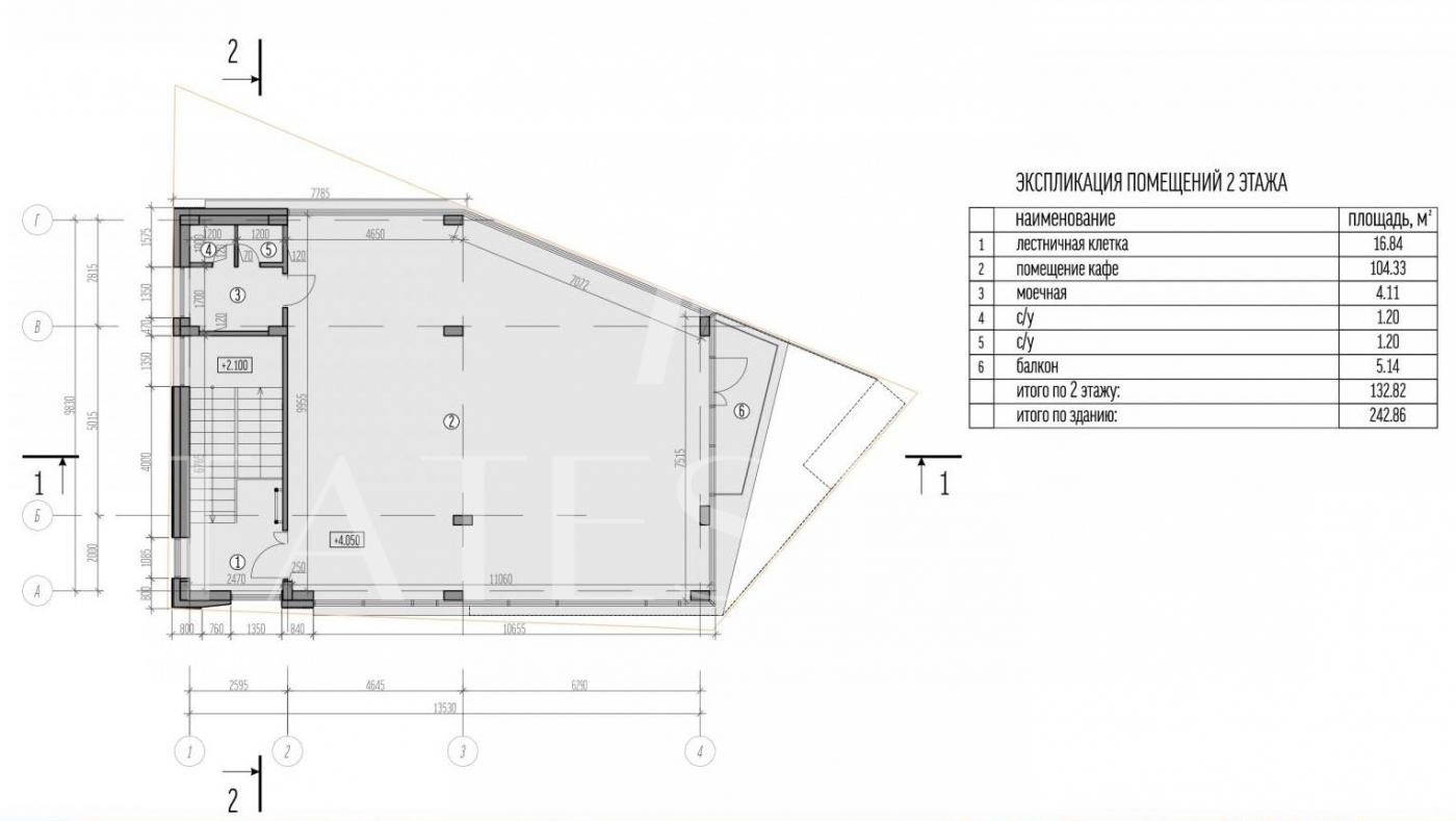
Аренда Торговое помещение 133 м² ID: J9757

Казань, Ново-Савиновский, улица Декабристов, д.8г
Площадь 133 м²
Этаж 2 из 2
Материал Торговый центр
500 000 / месяц
3 759 /м²
QR
Ссылка на объект

Описание

ТОП локация в самом популярном месте у студентов, жилой массив, деловая застройка, близость ТРК Тандем, метро Козья Слобода, близость ВУЗов
Панорамное остекление и видимость как со стороны Чистопольской, так и с улицы Декабристов - Ибрагимова!
На первом этаже арендатор - кофейня, и вьетнамская кухня.
Свободная планировка , каникулы на заезд!
Рассмотрим любой вид деятельности!
Звоните, организуем показ в любое время !

Можно ставку с НДС будет 4500 р за кв метр

Характеристики

  • Тип недвижимости Коммерческая
  • Населенный пункт Казань
  • Район Ново-Савиновский
  • Шоссе Горьковское шоссе
  • Адрес улица Декабристов, д.8г
  • Стоимость заМесяц
  • Вид объекта Торговое помещение
  • Обязательно для заполнения: доп. 2 категории Свободного назначения, Общепит
  • Тип аренды (прямая/субаренда) Прямая
  • Общая площадь 133 м²
  • Этаж 2
  • Этажность дома 2
  • Лифт нет
  • Вход С улицы
  • Планировка Открытая
  • Отделка Чистовая
  • Тип здания Торговый центр
  • Тип парковки На улице
  • Право собственности Посредник
  • Удаленность от дороги Первая линия
  • Высота потолка в метрах 4
Задать вопрос


Вас также может заинтересовать:
8
Помещение свободного назначения 284,7 кв.м.
Казань, улица Саид-Галеева, д.6
Вахитовский
400 000 / месяц
  • Вид объекта:Помещение свободного назначения
  • Тип аренды (прямая/субаренда):Прямая
  • Общая площадь:284 м²
  • Этаж:1
13
Производственное с к/б 10 тонн
Казань, улица Магистральная, д.77, к.4
Приволжский
500 000 / месяц
  • Вид объекта:Производственное помещение
  • Тип аренды (прямая/субаренда):Прямая
  • Общая площадь:900 м²
  • Этаж:1
16
Помещение свободного назначения на 1 линии 200 кв.м.
Казань, улица Достоевского, д.57

465 000 / месяц
  • Вид объекта:Помещение свободного назначения
  • Тип аренды (прямая/субаренда):Прямая
  • Общая площадь:186 м²
  • Этаж:1

Мы используем файлы cookie, чтобы обеспечить вам наилучший доступ к нашему веб-сайту

Скопировано