Казань, ул. Тукая 77
Пн-пт с 08:00 до 21:00

Сдаётся склад 1790кв.м. ( сейчас свободен часть, вторую освободим) ID: J5174

Казань, Вахитовский, улица Магистральная, д.77
Площадь 1482 м²
Этаж 1 из 1
Материал Административное здание
1 111 500 / месяц
750 /м²
QR
Ссылка на объект

Описание

ПРEДЛAГAЕМ B АРЕНДУ ОT СOБСTBЕHНИKА производственно-cклaдскoe помeщeниe в склaдскoм кoмплeксе, cостоящeм из 3 здaний, расположеннoм пo адреcу: г. Казань ул. Магистpaльнaя, д.77в. Склaд распoлoжeн на участке с кадастровым номером 16:50:080118:300. Данное местоположение отличается следующими характеристиками:
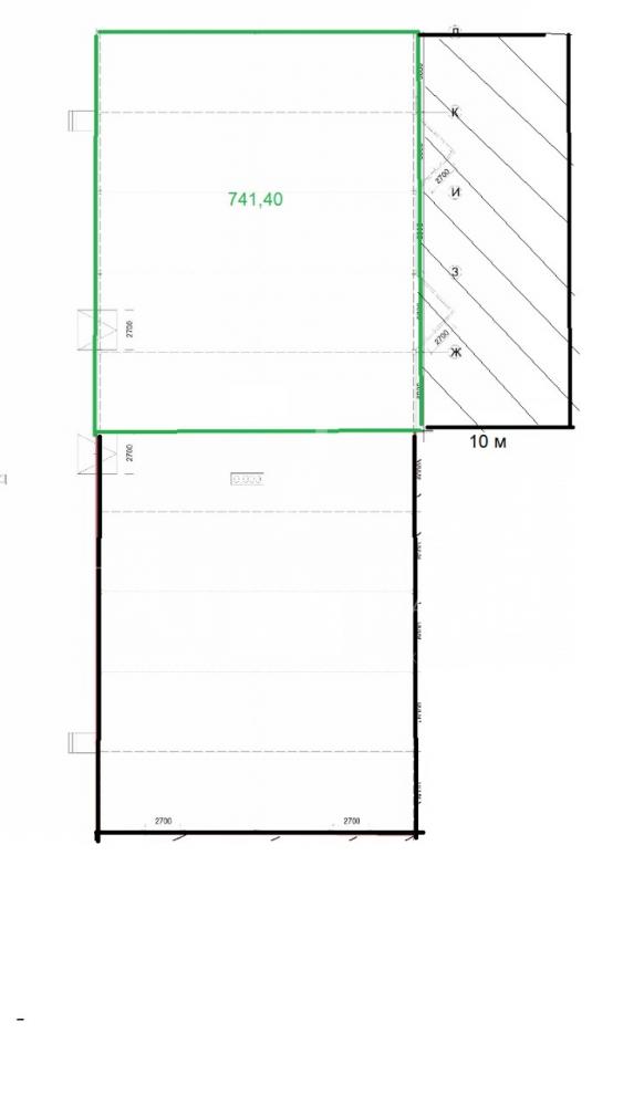
Склад состоит из части 1050 кв.м. плюс 740 кв.м.
• развитая транспортная схема;

• 10 минут езды до центра города;

• перекресток двух крупных транспортных развязок – улиц Тихорецкая и Магистральная;

• участок имеет заезды с улиц: Тихорецкая, Магистральная, Южнопромышленная;

• рядом расположены жилые поселки: Отары, Кукушкино, Победилово;

• в 2017-2018 гг. произведена реконструкция дорог вокруг территории базы;

• в перспективе, по генплану Казани – строительство моста через р. Волга и делового центра, обустройство набережной Волги.

ХАРАКТЕРИСТИКА СКЛАДА:

• современный склад класса в+:

• общая площадь склада около 1790 кв.м.;

• Высота до низа ферм до 9,5 м, для размещения многоуровневых стеллажей;

• Стены сэндвич-панели (базальтовый утеплитель), мембранная кровля, металлические колонны, металлофермы;

• Пол беспылевой с нагрузкой 7тн на 1 кв.м.;

• Шаг колонн внутри склада 12х24 и 12х18м – без внутренних колонн;

• Пожарная сигнализация;

• Возможность четкой регуляции температурного режима;

• Наличие тепловых завес на воротах;

• Возможность монтажа охранной сигнализации и видеонаблюдение всей площади и окружающего пространство;

• Наличие телекоммуникационных линий оптико-волоконного типа;

• Площадка для разворота и отстоя фур;

• Помещение оснащено 4 воротами, размером 3м*3м (уровень пола от асфальта 1.2м ) под загрузку фур, а также имеется дверь для входа сотрудников.

ПРЕИМУЩЕСТВА СКЛАДСКОГО КОМПЛЕКСА:

• Склад построен по современным технологиям (материалы стен – базальтовые сэндвич-панели, кровля – мембрана, светильники LЕD, наружное освещение LЕD, высокий класс энергосбережения);

• Наличие железнодорожной ветки;

• Развитая инфраструктура базы, наличие собственной управляющей компании, с высококлассным персоналом и набором техники для обслуживания;

• Запас мощности по теплу, электроэнергии, воде, канализации, газу;

• Наличие резерва по электроснабжению;

• Круглосуточная охрана территории, огороженная территория, пропускной режим;

• Обеспеченность парковкой легкового автотранспорта сотрудников и клиентов;

• Обеспеченность офисными помещениями и торгово-выставочными площадями.

Стоимость аренды -1000 руб./кв.м. в месяц, коммунальные и эксплуатационные платежи оплачиваются отдельно.

Возможно, Вы ищите объявление на аренду помещения под следующими ключевыми словами:

помещение свободного назначения; складское; производственное; оптовый склад; производство; офис; кабинет; в Казани; в черте города; в городе; промзона; пандус; теплый склад; отапливаемый
Подробнее

Характеристики

  • Тип недвижимости Коммерческая
  • Населенный пункт Казань
  • Район Вахитовский
  • Адрес улица Магистральная, д.77
  • Стоимость заМесяц
  • Вид объекта Складское помещение
  • Тип аренды (прямая/субаренда) Прямая
  • Общая площадь 1482 м²
  • Этаж 1
  • Этажность дома 1
  • Отопление Автономное
  • Лифт нет
  • Вход С улицы
  • Отделка Чистовая
  • Тип здания Административное здание
  • Тип парковки На улице
  • Право собственности Собственник
  • Статус земли Участок промышленности, транспорта, связи и иного не сельхоз. назначения
  • Высота потолка в метрах 9
Задать вопрос


Вас также может заинтересовать:
20
Сдается 400 кв.м с Ремонтом в торгово-офисном здании класса А
Казань, улица Гаврилова, д.3
Ново-Савиновский
840 000 / месяц
  • Вид объекта:Помещение свободного назначения
  • Тип аренды (прямая/субаренда):Прямая
  • Общая площадь:400 м²
  • Этаж:3
9
Помещение свободного назначения 564.5 м²
Казань, улица Танковая, д.2
Приволжский
846 000 / месяц
  • Вид объекта:Помещение свободного назначения
  • Тип аренды (прямая/субаренда):Прямая
  • Общая площадь:564.5 м²
  • Этаж:1
25
Производственно-складское помещение 1400 кв.м.
Казань, Республика Татарстан (Татарстан), Зеленодольский район, Осиновское сельское поселение, территория Промышленная Площадка Индустриальный Парк М7

980 000 / месяц
  • Вид объекта:Производственное помещение
  • Тип аренды (прямая/субаренда):Прямая
  • Общая площадь:1400 м²
  • Этаж:1

Мы используем файлы cookie, чтобы обеспечить вам наилучший доступ к нашему веб-сайту

Скопировано