Казань, ул. Тукая 77
Пн-пт с 08:00 до 21:00

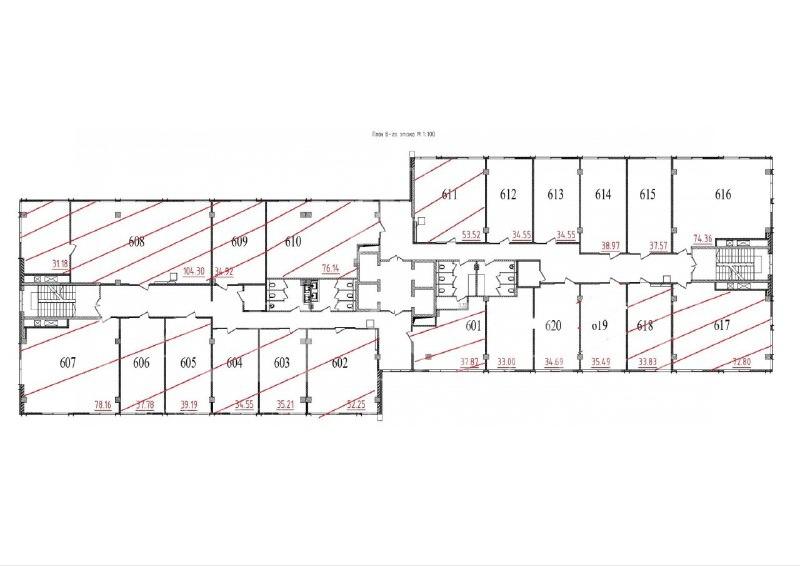
Офис класса А 450 кв.м. с НДС ID: J10707

Казань, Советский, проспект Победы, д.173
Площадь 450 м²
Этаж 6 из 10
Материал Бизнес-центр
900 000 / месяц
2 000 /м²
QR
Ссылка на объект

Описание

Офис класса А в Советском районе, первая линия, парковка, есть бесплатный паркинг без закрепления. места, есть уличный платный паркинг с закрепленным местом, есть подземный теплый паркинг с закрепленными местами

Новый БЦ со своей управляющей компанией, четким подходом к деталям, удобство для. клиентов в том, что в арендную ставку уже включено под ключ обслуживание все инфраструктуры
Что входит в предложение 450 кв.м.
аренда. всего блока. этажа , с возможностью выхода из лифта. только сотрудников по СКУД системе
8 светлых просторных блок. офисов от 40 кв и выше
единое стилевое решение по ремонту

доступ 24/7

парковка

транспортная логистика. очень удобная

Звоните организуем быстрый просмотр

Характеристики

  • Тип недвижимости Коммерческая
  • Населенный пункт Казань
  • Район Советский
  • Адрес проспект Победы, д.173
  • Стоимость заМесяц
  • Вид объекта Офисное помещение
  • Обязательно для заполнения: доп. 2 категории Свободного назначения, Торговое помещение
  • Тип аренды (прямая/субаренда) Прямая
  • Общая площадь 450 м²
  • Этаж 6
  • Этажность дома 10
  • Водоснабжение да
  • Лифт да
  • Вход С улицы
  • Планировка Кабинетная
  • Отделка Чистовая
  • Тип здания Бизнес-центр
  • Тип парковки На улице
  • Право собственности Посредник
  • Статус земли Поселений
  • Высота потолка в метрах 3
  • Статус офиса Помещение под офис
Задать вопрос


Вас также может заинтересовать:
20
Сдается 400 кв.м с Ремонтом в торгово-офисном здании класса А
Казань, улица Гаврилова, д.3
Ново-Савиновский
840 000 / месяц
  • Вид объекта:Помещение свободного назначения
  • Тип аренды (прямая/субаренда):Прямая
  • Общая площадь:400 м²
  • Этаж:3
9
Помещение свободного назначения 564.5 м²
Казань, улица Танковая, д.2
Приволжский
846 000 / месяц
  • Вид объекта:Помещение свободного назначения
  • Тип аренды (прямая/субаренда):Прямая
  • Общая площадь:564.5 м²
  • Этаж:1
25
Производственно-складское помещение 1400 кв.м.
Казань, Республика Татарстан (Татарстан), Зеленодольский район, Осиновское сельское поселение, территория Промышленная Площадка Индустриальный Парк М7

980 000 / месяц
  • Вид объекта:Производственное помещение
  • Тип аренды (прямая/субаренда):Прямая
  • Общая площадь:1400 м²
  • Этаж:1

Мы используем файлы cookie, чтобы обеспечить вам наилучший доступ к нашему веб-сайту

Скопировано