Казань, ул. Тукая 77
Пн-пт с 08:00 до 21:00

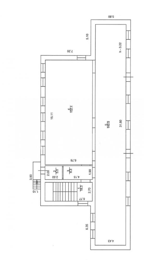
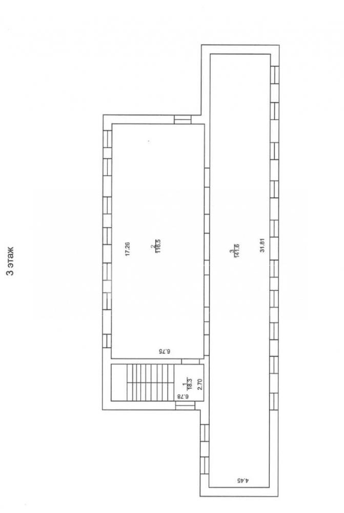
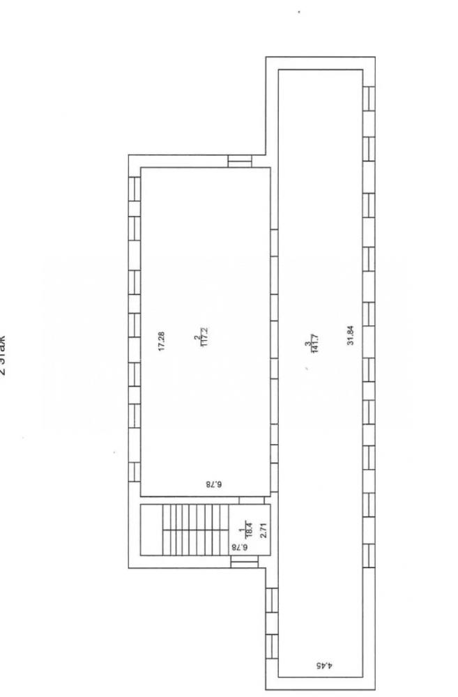
Аренда Здание 828.6 м² ID: J10647

Казань, Вахитовский, улица Нариманова, д.70
Площадь 828.6 м²
Этаж 3 из 3
Материал Административное здание
1 657 200 / месяц
2 000 /м²
QR
Ссылка на объект

Описание

Сдается здание 828.6 кв.м. Трехэтажное кирпичное в черновой отделке. Коммуникации заведены. Предоставляются каникулы на ремонт. Неотделимые улучшения за счет аренды. Планировка на всех трех этажах одинаковая. Несколько входов. Высокие потолки. Договор с ООО на УСН.

Характеристики

  • Тип недвижимости Коммерческая
  • Населенный пункт Казань
  • Район Вахитовский
  • Адрес улица Нариманова, д.70
  • Стоимость заМесяц
  • Вид объекта Здание
  • Обязательно для заполнения: доп. 2 категории Офис, Свободного назначения
  • Тип аренды (прямая/субаренда) Прямая
  • Общая площадь 828.6 м²
  • Этаж 3
  • Этажность дома 3
  • Лифт нет
  • Вход С улицы
  • Планировка Открытая
  • Отделка Без отделки
  • Тип здания Административное здание
  • Тип парковки На улице
  • Право собственности Собственник
  • Статус земли Поселений
  • Высота потолка в метрах 3.22
Задать вопрос


Вас также может заинтересовать:
9
Склад ответственного хранения, низкотемпературный
Казань, Зеленодольский район, Зеленодольск, территория Технополис Новая Тура, 3

2 000 000 / месяц
  • Вид объекта:Складское помещение
  • Тип аренды (прямая/субаренда):Прямая
  • Общая площадь:2000 м²
  • Этаж:1
19
Общепит-кафе
24/7 доступ
Помещение свободного назначения 909 м²
Казань, улица Нариманова, д.70/1
Вахитовский
1 818 000 / месяц
  • Вид объекта:Помещение свободного назначения
  • Тип аренды (прямая/субаренда):Прямая
  • Общая площадь:909 м²
  • Этаж:1
13
Помещение свободного назначения 660 кв.м. первая линия локация топ
Казань, улица Спартаковская, д.12
Вахитовский
1 320 000 / месяц
  • Вид объекта:Помещение свободного назначения
  • Тип аренды (прямая/субаренда):Прямая
  • Общая площадь:660 м²
  • Этаж:1

Мы используем файлы cookie, чтобы обеспечить вам наилучший доступ к нашему веб-сайту

Скопировано