Казань, ул. Тукая 77
Пн-пт с 08:00 до 21:00

Помещение под медицину первая линия 329 кв.м. ID: J10626

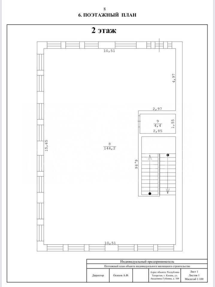
Казань, Советский, улица Академика Губкина, д.108
Площадь 329 м²
Этаж 1 из 2
Материал Административное здание
490 000 / месяц
1 489 /м²
QR
Ссылка на объект

Описание

Отдельно стоящее помещение, уникальное для своей локации, отлично просматривается с Проспекта Победы, состоит из двух этажей, первый этаж торговый зал 150 кв.м., много окон, светлое.
Объект сдается в аренду с ремонтом: площадка асфальтированная перед зданием , на полу керамогранит Estima , кондиционирование, двери установлены новые, стены окрашены.
Площадь всего помещения 329 кв.м.
Имеется земельный участок под 5 парковочных мест. Рядом остановка общественного транспорта (5 минут).

Характеристики

  • Тип недвижимости Коммерческая
  • Населенный пункт Казань
  • Район Советский
  • Адрес улица Академика Губкина, д.108
  • Стоимость заМесяц
  • Вид объекта Помещение свободного назначения
  • Тип аренды (прямая/субаренда) Прямая
  • Общая площадь 329 м²
  • Этаж 1
  • Этажность дома 2
  • Отопление Автономное
  • Водоснабжение да
  • Лифт нет
  • Вход С улицы
  • Планировка Открытая
  • Отделка Чистовая
  • Тип здания Административное здание
  • Тип парковки На улице
  • Право собственности Посредник
  • Удаленность от дороги Первая линия
  • Статус земли Поселений
  • Высота потолка в метрах 4
Задать вопрос


Вас также может заинтересовать:
8
Помещение свободного назначения 284,7 кв.м.
Казань, улица Саид-Галеева, д.6
Вахитовский
400 000 / месяц
  • Вид объекта:Помещение свободного назначения
  • Тип аренды (прямая/субаренда):Прямая
  • Общая площадь:284 м²
  • Этаж:1
13
Производственное с к/б 10 тонн
Казань, улица Магистральная, д.77, к.4
Приволжский
500 000 / месяц
  • Вид объекта:Производственное помещение
  • Тип аренды (прямая/субаренда):Прямая
  • Общая площадь:900 м²
  • Этаж:1
16
Помещение свободного назначения на 1 линии 200 кв.м.
Казань, улица Достоевского, д.57

465 000 / месяц
  • Вид объекта:Помещение свободного назначения
  • Тип аренды (прямая/субаренда):Прямая
  • Общая площадь:186 м²
  • Этаж:1

Мы используем файлы cookie, чтобы обеспечить вам наилучший доступ к нашему веб-сайту

Скопировано