Казань, ул. Тукая 77
Пн-пт с 08:00 до 21:00

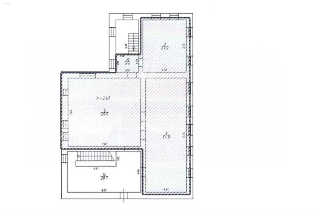
Помещение свободного назначения 146,3 кв.м. ID: J10447

Казань, Вахитовский, улица Габдуллы Тукая, д.84
Площадь 146 м²
Этаж 3 из 3
Материал Другой
189 800 / месяц
1 300 /м²
Мирослав Федотов Мирослав Федотов
Специалист по коммерческой недвижимости
Показать телефон miroslav@tat-estate.ru
QR
Ссылка на объект

Описание

Предложение от собственника!

Предлагаем в аренду помещение 146,3 кв.м.

- доступ 24/7;
- свой вход;
- высота потолков 2,7м.;
- пожарная сигнализация;
- оплата коммунальных платежей оплачивается отдельно;
- сдается под разный вид деятельности.

Характеристики

  • Тип недвижимости Коммерческая
  • Населенный пункт Казань
  • Район Вахитовский
  • Адрес улица Габдуллы Тукая, д.84
  • Стоимость заМесяц
  • Вид объекта Помещение свободного назначения
  • Обязательно для заполнения: доп. 2 категории Офис, Торговое помещение
  • Тип аренды (прямая/субаренда) Прямая
  • Общая площадь 146 м²
  • Этаж 3
  • Этажность дома 3
  • Отопление Центральное
  • Водоснабжение да
  • Лифт нет
  • Вход Со двора
  • Планировка Кабинетная
  • Отделка Чистовая
  • Тип здания Другой
  • Тип парковки На улице
  • Право собственности Собственник
  • Удаленность от дороги Первая линия
  • Статус земли Поселений
  • Высота потолка в метрах 3
Задать вопрос


Вас также может заинтересовать:
6
Первая линия
Отдельный вход
Помещение свободного назначения 150 кв.м.
Казань, улица Вишневского, д.12
Вахитовский
225 000 / месяц
  • Вид объекта:Помещение свободного назначения
  • Тип аренды (прямая/субаренда):Прямая
  • Общая площадь:150 м²
  • Этаж:1
17
24/7 доступ
Бесплатная парковка
Сдам офис из 8 кабинетов, 5 из них с окном
Казань, проспект Победы, д.226
Советский
176 000 / месяц
  • Вид объекта:Офисное помещение
  • Тип аренды (прямая/субаренда):Субаренда
  • Общая площадь:160 м²
  • Этаж:-1
11
Общепит-кафе
Отдельный вход
Помещение свободного назначения, 164 м²
Казань, улица Ярдем, д.25
Приволжский
188 600 / месяц
  • Вид объекта:Помещение свободного назначения
  • Тип аренды (прямая/субаренда):Прямая
  • Общая площадь:164 м²
  • Этаж:1

Мы используем файлы cookie, чтобы обеспечить вам наилучший доступ к нашему веб-сайту

Скопировано