Казань, ул. Тукая 77
Пн-пт с 08:00 до 21:00

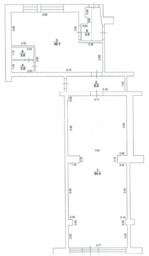
Помещение свободного назначения на 1й линии 141,4 кв.м. ID: J10396

Казань, улица Гвардейская, д.35
Площадь 141.4 м²
Этаж 1 из 9
Материал Жилой дом
240 380 / месяц
1 700 /м²
Мирослав Федотов Мирослав Федотов
Специалист по коммерческой недвижимости
Показать телефон miroslav@tat-estate.ru
QR
Ссылка на объект

Описание

Предложение от собственника!

Предлагаем в аренду помещение свободного назначения на 1й линии 141,4 кв.м.

- доступ 24/7;
- 1я линия;
- свой сан.узел;
- есть возможность размещения вывески;
- высота потолков 3.3м.;
- 30 квт. мощности;
- оплата коммунальных платежей оплачивается отдельно;

Рассматриваем любой вид деятельности!

Характеристики

  • Тип недвижимости Коммерческая
  • Населенный пункт Казань
  • Адрес улица Гвардейская, д.35
  • Стоимость заМесяц
  • Вид объекта Помещение свободного назначения
  • Обязательно для заполнения: доп. 2 категории Офис, Торговое помещение
  • Тип аренды (прямая/субаренда) Прямая
  • Общая площадь 141.4 м²
  • Этаж 1
  • Этажность дома 9
  • Отопление Центральное
  • Лифт нет
  • Вход С улицы
  • Планировка Открытая
  • Отделка Офисная
  • Тип здания Жилой дом
  • Тип парковки На улице
  • Право собственности Собственник
  • Удаленность от дороги Первая линия
  • Статус земли Поселений
  • Высота потолка в метрах 3.3
Задать вопрос


Вас также может заинтересовать:
16
Помещение свободного назначения 250 м²
Казань, улица Техническая, д.41А
Приволжский
250 000 / месяц
  • Вид объекта:Помещение свободного назначения
  • Тип аренды (прямая/субаренда):Прямая
  • Общая площадь:250 м²
  • Этаж:2
5
Отдельный вход
24/7 доступ
Помещение свободного назначения 132.7 м²
Казань, улица Гвардейская, д.54е
Советский
300 000 / месяц
  • Вид объекта:Помещение свободного назначения
  • Тип аренды (прямая/субаренда):Прямая
  • Общая площадь:132.7 м²
  • Этаж:1
10
кран-балка
Отдельный вход
Теплый склад-производство 443 м2 на Набережной с кран-балкой
Казань, Казань, Набережная улица, 31АлитМ
Кировский
190 000 / месяц
  • Вид объекта:Производственное помещение
  • Тип аренды (прямая/субаренда):Прямая
  • Общая площадь:443 м²
  • Этаж:1

Мы используем файлы cookie, чтобы обеспечить вам наилучший доступ к нашему веб-сайту

Скопировано