Казань, ул. Тукая 77
Пн-пт с 08:00 до 21:00

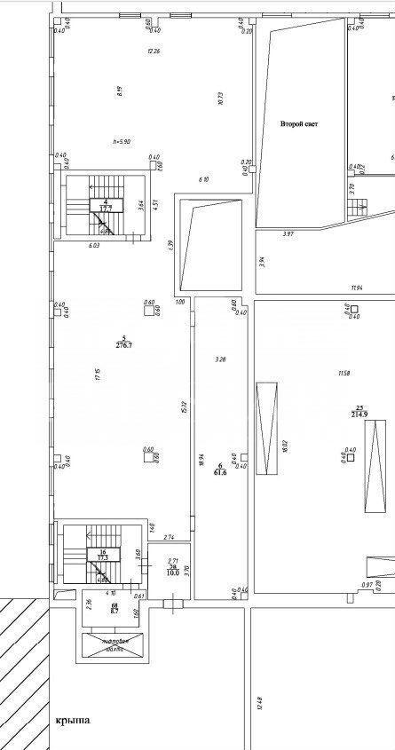
Помещение свободного назначения 250 м² ID: J10032

Казань, Вахитовский, улица Мазита Гафури, д.46
Площадь 250 м²
Этаж 5 из 5
Материал Бизнес-центр
250 000 / месяц
1 000 /м²
QR
Ссылка на объект

Описание

Сдается помещение свободного назначения площадью 250 кв.м. на 5 этаже, формат ТРЦ с отдельным входом в офисную часть по адресу: ул. Гафури ,46 .
- 5 этаж, отдельный вход
- доступ 24/7
- стильный дизайнерский ремонт (рендер ремонта помещения прилагаются)
- высота потолков 2,6 м.
- выделенная э/э мощность от 35 кВт;
- централизованное отопление, водоснабжение и канализация;
- собственный санузел
- охранная и пожарная сигнализация
- удобные подъездные пути;
- большая парковка вокруг здания
- рядом остановка общественного транспорта
- 3 минуты езды до центра города
- охрана 24 часа и системой видеонаблюдения на территории ТРЦ
- в ТРЦ расположены - Аквапарк Барионикс, развлекательный центр MazaPark и Океанариум, которые обеспечат трафик посетителей
- подойдёт под офисы, коворкинг пространства
- рядом находятся ул. Татарстан, Меховщиков, Портовая

Характеристики

  • Тип недвижимости Коммерческая
  • Населенный пункт Казань
  • Район Вахитовский
  • Адрес улица Мазита Гафури, д.46
  • Стоимость заМесяц
  • Вид объекта Помещение свободного назначения
  • Тип аренды (прямая/субаренда) Прямая
  • Общая площадь 250 м²
  • Этаж 5
  • Этажность дома 5
  • Отопление Центральное
  • Лифт нет
  • Вход С улицы
  • Планировка Кабинетная
  • Отделка Чистовая
  • Тип здания Бизнес-центр
  • Тип парковки На улице
  • Право собственности Посредник
  • Удаленность от дороги Первая линия
  • Высота потолка в метрах 2.6
Задать вопрос


Вас также может заинтересовать:
6
Первая линия
Отдельный вход
Помещение свободного назначения 150 кв.м.
Казань, улица Вишневского, д.12
Вахитовский
225 000 / месяц
  • Вид объекта:Помещение свободного назначения
  • Тип аренды (прямая/субаренда):Прямая
  • Общая площадь:150 м²
  • Этаж:1
11
Общепит-кафе
Отдельный вход
Помещение свободного назначения, 164 м²
Казань, улица Ярдем, д.25
Приволжский
188 600 / месяц
  • Вид объекта:Помещение свободного назначения
  • Тип аренды (прямая/субаренда):Прямая
  • Общая площадь:164 м²
  • Этаж:1
16
Помещение свободного назначения 250 м²
Казань, улица Техническая, д.41А
Приволжский
250 000 / месяц
  • Вид объекта:Помещение свободного назначения
  • Тип аренды (прямая/субаренда):Прямая
  • Общая площадь:250 м²
  • Этаж:2

Мы используем файлы cookie, чтобы обеспечить вам наилучший доступ к нашему веб-сайту

Скопировано