Казань, ул. Тукая 77
Пн-пт с 08:00 до 21:00

Помещение свободного назначения 480 м² ID: J10031

Казань, Вахитовский, улица Мазита Гафури, д.46
Площадь 480 м²
Этаж 1 из 5
Материал Бизнес-центр
480 000 / месяц
1 000 /м²
QR
Ссылка на объект

Описание

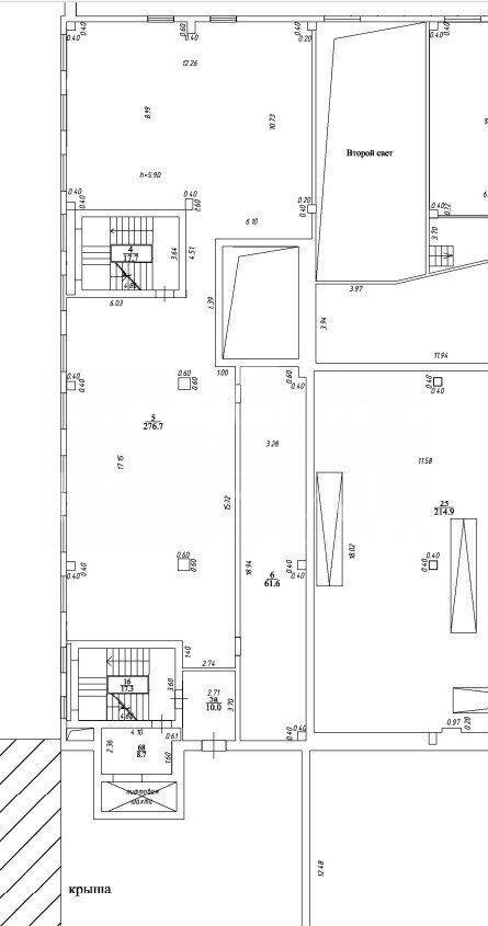
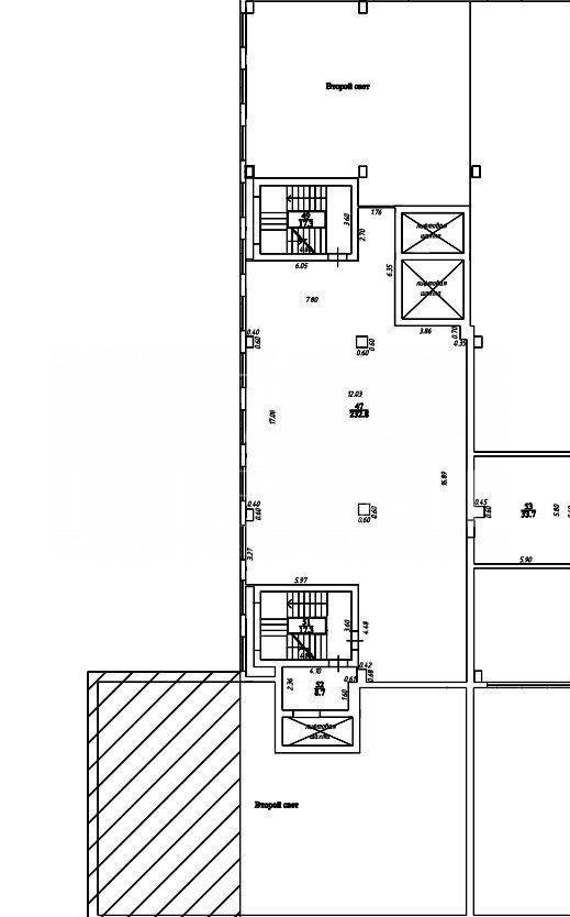
Сдается помещение свободного назначения площадью 480 кв.м. из них 230 кв.м. на 4 этаже, 250 кв.м. на 5 этаже, формат ТРЦ с отдельным входом в офисную часть по адресу: ул. Гафури ,46 .
-на 4 и н 5 этажах, отдельный вход
-доступ 24/7
-стильный дизайнерский ремонт (рендер ремонта помещения прилагаются)
-высота потолков 2,6 м.
-выделенная э/э мощность от 35 кВт;
-централизованное отопление, водоснабжение и канализация;
-собственный санузел
-охранная и пожарная сигнализация
-удобные подъездные пути;
-большая парковка вокруг здания
- рядом остановка общественного транспорта
- 3 минуты езды до центра города
- охрана 24 часа и системой видеонаблюдения на территории ТРЦ
- в ТРЦ расположены - Аквапарк Барионикс, развлекательный центр MazaPark и Океанариум, которые обеспечат трафик посетителей
- подойдёт под офисы, коворкинг пространства
- рядом находятся ул. Татарстан, Меховщиков, Портовая

Характеристики

  • Тип недвижимости Коммерческая
  • Населенный пункт Казань
  • Район Вахитовский
  • Адрес улица Мазита Гафури, д.46
  • Стоимость заМесяц
  • Вид объекта Помещение свободного назначения
  • Тип аренды (прямая/субаренда) Прямая
  • Общая площадь 480 м²
  • Этаж 1
  • Этажность дома 5
  • Отопление Центральное
  • Лифт нет
  • Вход С улицы
  • Планировка Кабинетная
  • Отделка Чистовая
  • Тип здания Бизнес-центр
  • Тип парковки На улице
  • Право собственности Посредник
  • Удаленность от дороги Первая линия
  • Высота потолка в метрах 2.6
Задать вопрос


Вас также может заинтересовать:
8
Помещение свободного назначения 284,7 кв.м.
Казань, улица Саид-Галеева, д.6
Вахитовский
400 000 / месяц
  • Вид объекта:Помещение свободного назначения
  • Тип аренды (прямая/субаренда):Прямая
  • Общая площадь:284 м²
  • Этаж:1
13
Производственное с к/б 10 тонн
Казань, улица Магистральная, д.77, к.4
Приволжский
500 000 / месяц
  • Вид объекта:Производственное помещение
  • Тип аренды (прямая/субаренда):Прямая
  • Общая площадь:900 м²
  • Этаж:1
16
Помещение свободного назначения на 1 линии 200 кв.м.
Казань, улица Достоевского, д.57

465 000 / месяц
  • Вид объекта:Помещение свободного назначения
  • Тип аренды (прямая/субаренда):Прямая
  • Общая площадь:186 м²
  • Этаж:1

Мы используем файлы cookie, чтобы обеспечить вам наилучший доступ к нашему веб-сайту

Скопировано